AKADEMIE VĚD HYBERNSKÁ

2020 PRŮZKUMY A STUDIE 2021 DSP 2022 DPS

Architektonický návrh: ANTA s.r.o.

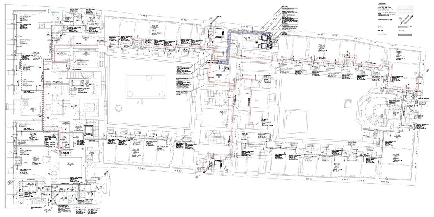
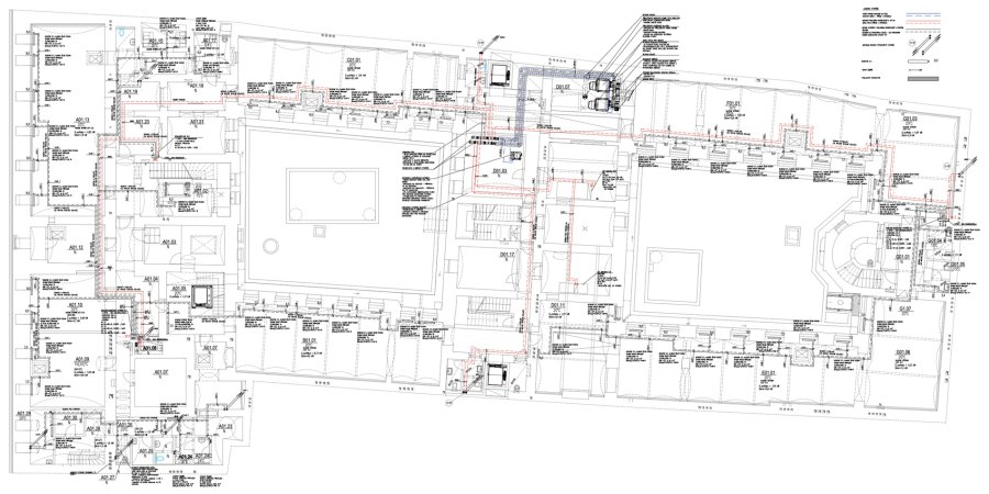
Jedná se o rekonstrukci stávající administrativní budovy z roku 1860 s obchodními prostory v uličním parteru a bytovými prostorami v uličním traktu situovanou v ulici Hybernská v centru Prahy 1. Objekt je nemovitou kulturní památkou – Dům U Cikánů, U Ramišů.
Budovu tvoří celkem sedm propojených křídel ve dvorním traktu. Jednotlivá křídla budovy vytvářejí dva uzavřené dvory, propojené průjezdem. Objekt má jedno podzemní podlaží, které se nachází pod všemi křídly a šest nadzemních podlaží včetně podkroví.
Administrativní budova bude i po rekonstrukci sloužit především pro potřeby 3 ústavů spolupracujících v rámci Akademie věd ČR.

Naše kancelář Růžička a partneři s.r.o. zajišťovala přípravu projektu (studie a průzkumy), následně projektovou dokumentaci TZB, včetně přípojek a koordinaci profesí TZB ve všech stupních.

INVESTOR


Psychologický ústav AV ČR, v.v.i., Orientální ústav AV ČR, v.v.i., Ústav pro soudobé dějiny AV ČR, v.v.i

ARCHITEKTONICKÝ NÁVRH, STAVEBNÍ ČÁST A KOORDINACE


ANTA s.r.o.

SPOLUPRÁCE


elektroinstalace, MaR: Draconis s.r.o.
PENB, VZT a chlazení: DEKPROJEKT s.r.o.
vodní prvek: Bazény a wellness s.r.o.