BYTOVÉ DOMY BARRANDOV

2004 DÚR, PSP 2005 RS

ARCHITEKTONICKÝ NÁVRH: Ing. akad. arch. Jaroslav Kosek, Architektonický atelier Kosek s.r.o.

Obytný soubor Barrandov je areál se 6 obytnými domy s celkovým počtem 71 bytů. Stavební objekty zahrnují jednotlivé domy, komunikace, terénní úpravy včetně zeleně a inženýrské sítě.

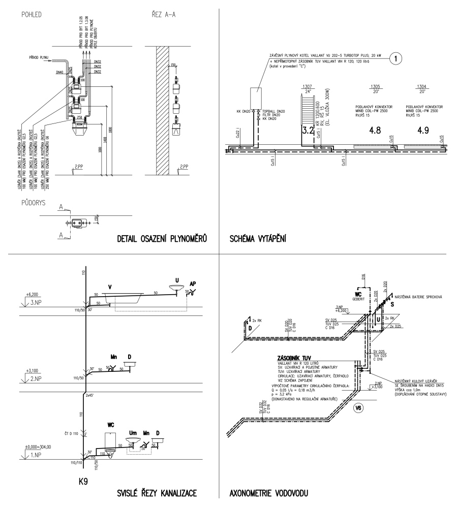
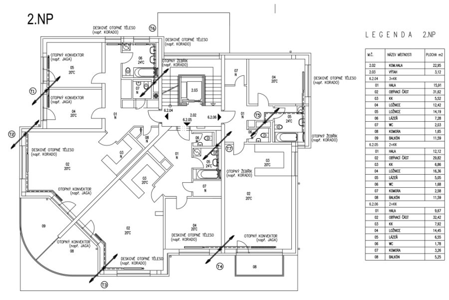
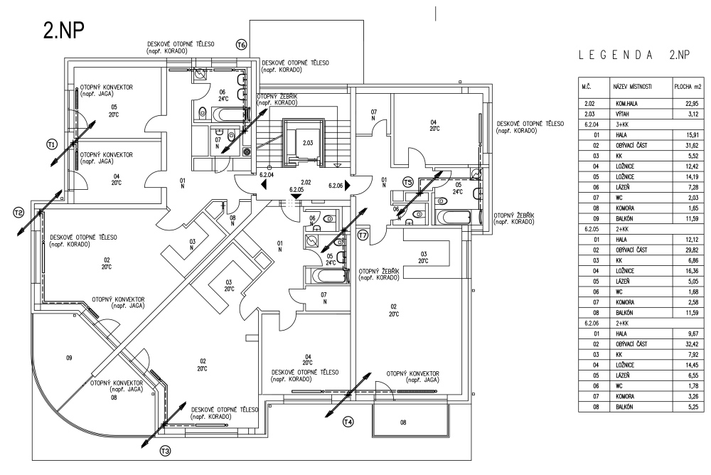
Naše kancelář Růžička a partneři s.r.o. zajišťovala technickou koordinaci přípravy inženýrských sítí a TZB jednotlivých objektů ve všech stupních projektu. Pro architekty jsme řídili přípravu celkové koordinační situace stavby, projekty inženýrských sítí (NN, slaboproudy, kanalizace, vodovod a plynovod) a vnitřní instalace TZB (kanalizace, vodovod, plynovod, vytápění a vzduchotechnika).

KLIENT


A.P. CAPITAL s.r.o.

ARCHITEKTONICKÝ NÁVRH


Ing. akad. arch. Jaroslav Kosek, Architektonický atelier Kosek s.r.o.

STAVEBNÍ ČÁST


Architektonický atelier Kosek s.r.o.

SPOLUPRÁCE


VZT: Projekční kancelář vzduchotechnika – hluk, Ing. Karel Havlík
elektroinstalace: Electradesign
požární bezpečnost - Ing. I. Muziková