CHATEAU MCELY

2009 DSP

ARCHITEKTONICKÝ NÁVRH: A69 – architekti, s.r.o.

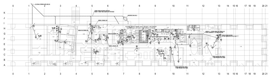
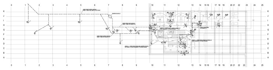
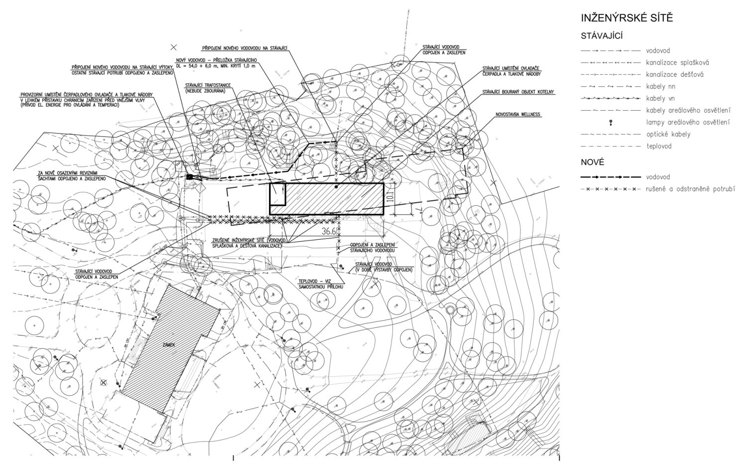
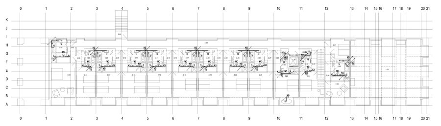
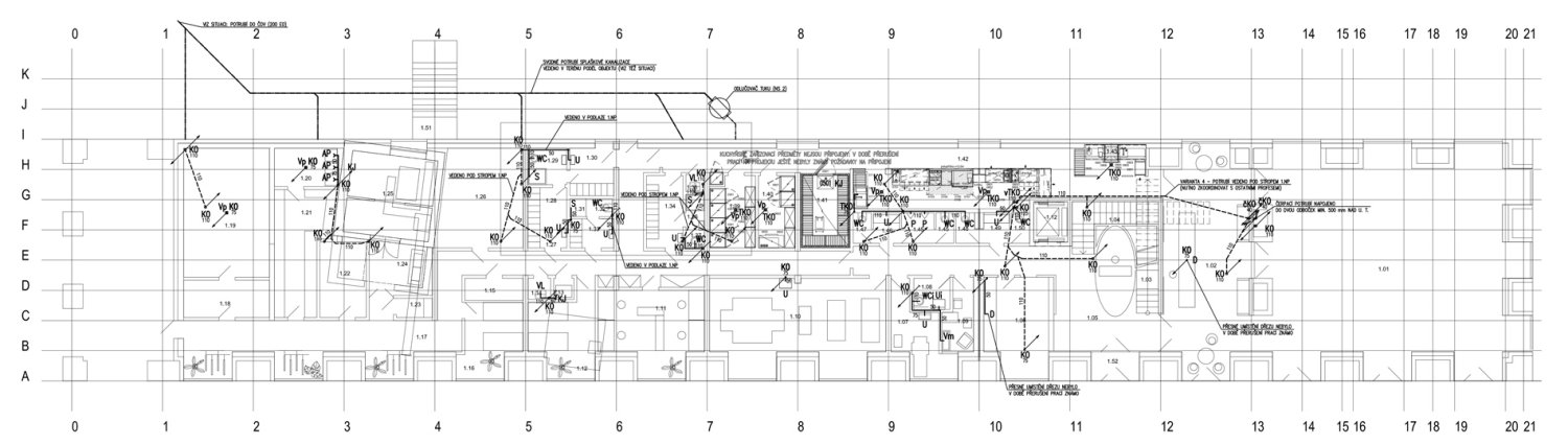
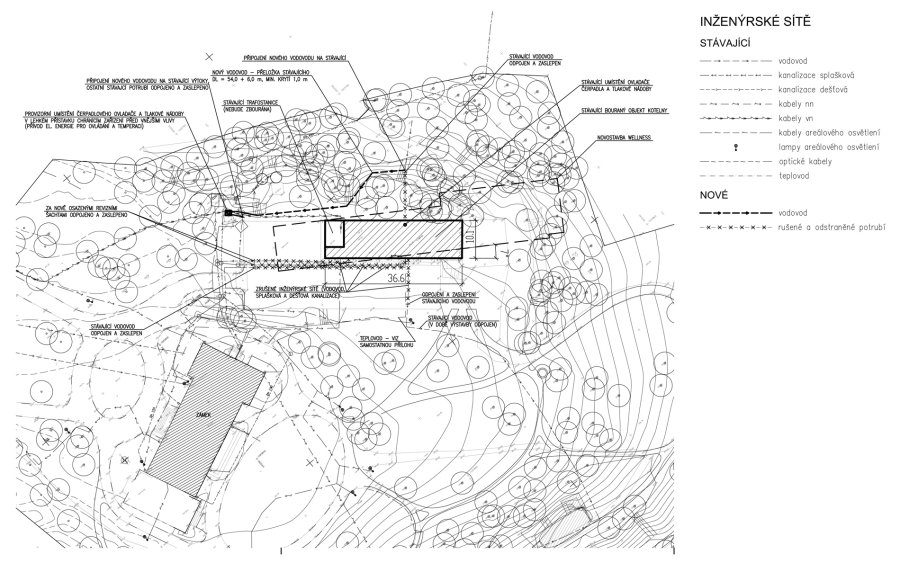
Projekt pro stavební povolení řešil druhou fázi dobudování zámeckého areálu Chateau Mcely. Zámecký areál se nachází ve Středočeském kraji v okrese Nymburk. Dobudováním 2. fáze se ukončila rekonstrukce a modernizace zámeckého areálu na exkluzivní relaxační butikový hotelový komplex mezinárodního významu pod značkou Chateau Mcely.
V rámci dobudování zámeckého areálu vznikly následující stavební objekty:
Wellness centrum / Skleník s bylinkovou zahradou / Parkové cesty a zahradní úpravy / Koupaliště ve volné přírodě /Multifunkční sportovní hřiště.

Naše kancelář Růžička a partneři s.r.o. zajišťovala kompletní projektovou dokumentaci.

KLIENT:
CHATEAU MCELY, Mcely 61, 289 36 Mcely

ARCHITEKTONICKÝ NÁVRH


A69 – architekti, s.r.o.

STAVEBNÍ ČÁST


Ing. Miroslav Andrt

SPOLUPRÁCE


VZT: Projekční kancelář vzduchotechnika, Ing. Karel Havlík
elektroinstalace: Jiří Duda Servis
bazénová technologie: Sportakcent spol. s.r.o.
PBŘ: Ing. arch. Petr Syrový, Csc.