CHRÁNĚNÉ BYDLENÍ NOVÁ PAKA

2022 PZ, DOZ, DUR, DSP 2023 DPS

Autor projektu, HIP, architektonický návrh: NEUHÄUSL HUNAL s.r.o.

Dokumentace řeší přípravu stavby zahrnující odstranění stávající stavby a novostavbu areálu stavby občanské vybavenosti, a to konkrétně „Výstavbu chráněného bydlení v Nové Pace“. Areál zahrnuje výstavbu čtyř objektů chráněného bydlení, a s tím související areálové řešení zahrnující dopravní řešení, včetně napojení areálu na veřejnou komunikaci, oplocení, přístřešek pro parkování, přístřešek pro popelnice, opěrné stěny, sadové úpravy a areálové osvětlení. Dále dokumentace řeší napojení na veřejné sítě, zdroj tepla a chladu formou zemních vrtů a fotovoltaickou elektrárnu v podobě mikrozdroje.
Návrh je proveden na základě architektonického návrhu společnosti NEUHÄUSL HUNAL s.r.o. a úzké spolupráce s touto společností, která zde mimo jiné zaujímá funkci HIP, zpracovatele architektonické části a interiérů.
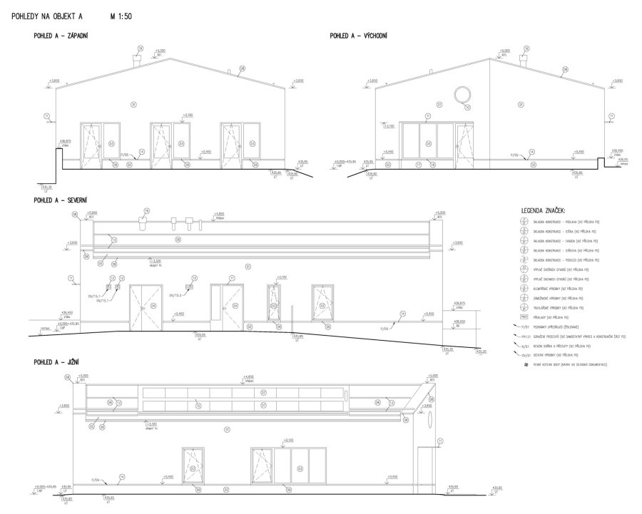
Stavebním záměrem je návrh areálu chráněného bydlení, který bude svým uspořádáním v maximální míře působit jako bydlení v rodinných domech. Základem jsou čtyři stavby občanské vybavenosti, které jsou však pojednány jako rodinné domy na společném pozemku. Areál jako celek je řešen bezbariérově.
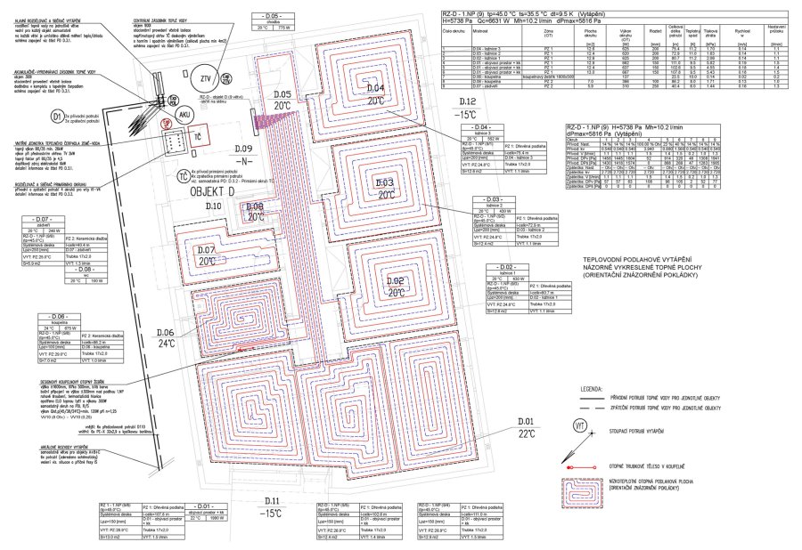
Zdrojem pro vytápění a chlazení je tepelné čerpadlo, které jako zdroj energie využívá zemní vrty. Hygienická výměna vzduchu je převážně navržena VZT jednotkou s rekuperací. Likvidace dešťových vod je řešena kombinací vsakovacího zařízení, akumulačně-retenční nádrže s využitím dešťových vod pro závlahu pozemku a s likvidací ostatních a nevyužitých dešťových vod do veřejné kanalizace. Zpevněné plochy jsou navrženy ve spádu do přilehlé zeleně, kde dojde k přirozenému vsaku.

Naše kancelář Růžička a partneři s.r.o. zajišťovala kompletní projektovou dokumentaci jako hlavní projektant pod vedením autora projektu. Zajištovali jsme kompletní projektovou dokumentaci a inženýrskou činnost pro veškeré stupně projektové dokumentace. Na straně projektu jsme zpracovávali koordinační části projektové dokumentace (souhrnné zprávy, situace), projektovali jsme architektonicko-stavební řešení, ZTI, vytápění, chlazení, zdroj tepla a chladu a úzce spolupracovali s dalšími profesemi, a také na rozpočtu stavby.

KLIENT


Královehradecký kraj

AUTOR PROJEKTU, HIP, ARCHITEKTONICKÝ NÁVRH


NEUHÄUSL HUNAL s.r.o.

SPOLUPRÁCE


stavebně konstrukční řešení: První statická s.r.o.
požární řešení: Ing. Jiří Ledinský
vzduchotechnika: Ing. Miroslav Rathouský
elektroinstalace: ELEKTROPRO, Aleš Svoboda
dopravní řešení: ŠTĚPA projekce s.r.o.