HARRACHOVSKÝ PALÁC

2013 DSP 2014 REALIZAČNÍ PROJEKT

AUTOR NÁVRHU: AV19 s.r.o.

Celá část středního traktu, hmota současné prodejny ve dvoře a východní křídlo od 2.NP bude zcela strženo.
Dvůr bude dispozičně uvolněn a vymezen pouze stávajícími obvodovými stěnami okolních traktů. Tento prostor bude nově dispozičně rozčleněn.
Stržené východní křídlo a střední trakt bude následně opětovně vystaveno dle původního historického rozsahu. Obě dvě tato křídla budou dále navýšena o ustupující střešní penthouse s odlišným materiálovým řešením.
Zbylý prostor vymezený severním, jižním a východním křídlem bude zastřešen a vznikne tak jednopodlažní objekt, který bude v budoucnu sloužit jako prodejní plocha. Střecha této hmoty bude pochozí (přístupná z 2.NP), bude doplněna zelení, posezením a bude sloužit především jako prostor pro odpočinek a relaxaci. Takto navržené dispoziční řešení bude provozně navazovat na stávající prostory objektu.
Severní křídlo dojde pouze drobných stavebních úprav – tato část budovy bude pietně restaurována.
V 1.NP jsou navrženy plochy pronajímané k účelům obchodu se zázemím a plochy komunikační. Ve dvoře bude nově vybudován systém automatického garážového stání pro 12 aut.
Ve 2. a 3. NP jsou navrženy kancelářské plochy s navazujícím příslušným zázemím. Ve 3.NP jsou pod stávajícím historickým barokvním krovem v jižním křídle volné prostory, které je možné zpřístupnit a následně využít například jako galerii nebo ateliér.
Ve 4.NP jsou navrženy byty, část z nich disponuje střešními terasami.
Střechy zvýšeného východního křídla a středního traktu budou pultové ve spádu do atria, půdorysným rozsahem shodným se střechou stávající.
V jednotlivých křídlech jsou zachována stávající historická schodiště, která budou doplněna o nová odlehčená schodiště propojující nově vzniklé prostory se stávajícími. Jednotlivá křídla budou dále bezbariérově zpřístupněna třemi osobními výtahy.

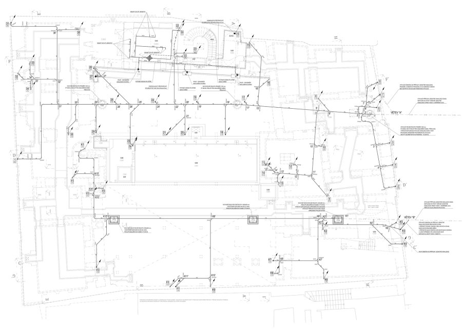
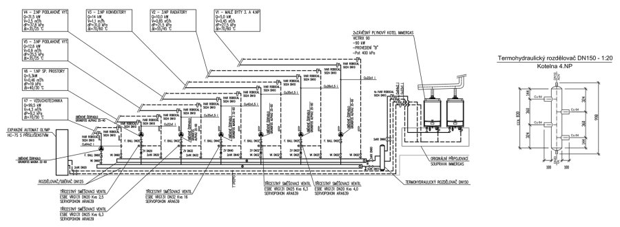
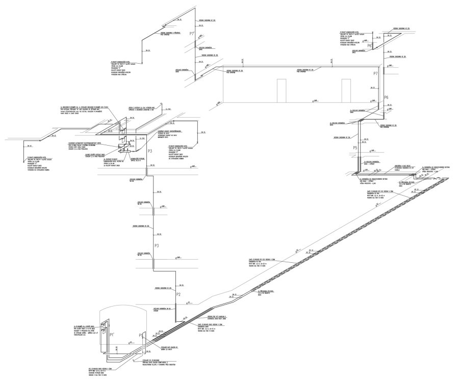
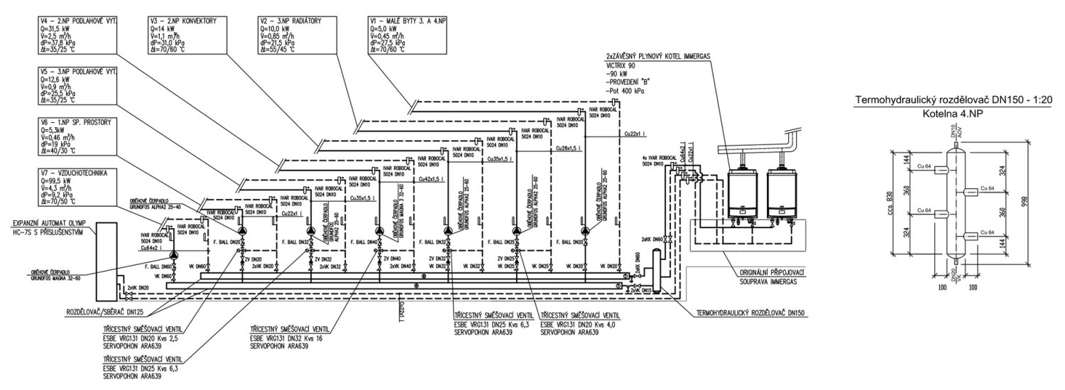
Naše kancelář Růžička a partneři s.r.o. zajišťovala projektovou dokumentaci ZTI, plynovodu a vytápění.

KLIENT
Baťa, akciová společnost

AUTOR NÁVRHU
AV19 s.r.o.

HLAVNÍ PROJEKTANT
AV19 s.r.o.

STAVEBNĚ ARCHITEKTONICKÉ ŘEŠENÍ
AV19 s.r.o.

SPOLUPRÁCE
VZT a chlazení: Projekční kancelář Vzduchotechnika – hluk, Ing. Miroslav Rathouský
elektroinstalace: Ing. Jaroslav Altera
MaR: Ing. Zdeněk Plch
PBŘ: Ater international s.r.o., Ing. Hana Menclová, PhD.