HOLEŠOVICKÁ TRŽNICE

ARCHITEKTONICKÝ NÁVRH:

Areál Pražské tržnice je považován za unikátní vzhledem ke své historii, provoznímu a kompozičnímu řešení a v neposlední řadě vzhledem ke své jedinečné poloze v rámci Prahy. Existuje jen málo bývalých průmyslových areálů v České republice a obecně v Evropě, které jsou tak rozsáhlé, dobře zachované a plné bohaté historie jako stará jatka v Holešovicích. Paměť tohoto místa sahá velmi daleko a je kulturní pýchou. Pražská Tržnice prošla za posledních sto let celou řadou proměn a dílčích zásahů, z nichž některé byly úspěšné, naopak některé vůbec. Přesto tržnice zůstává velmi známým a oblíbeným místem pro místní obyvatele i turisty, ovšem aby vyhovovala provozním a uživatelským nárokům tohoto století, zoufale potřebuje celkové oživení.
Pokud si hl. město Praha jako vlastník areálu, klade za cíl udělat z Pražské tržnice živé pobytové místo atraktivní jak pro Pražany, tak pro jakékoli návštěvníky, je třeba nastolit jasný koncepční přístup k areálu jako k celku.
Problémy a rozpory Pražské tržnice jsou všudypřítomné. Pěší propojení jsou uspořádána chaoticky a připomínají bludiště, dochází ke kolizím mezi pohybem pěších a automobilů, ať už osobních či zásobovacích. Nádherná nádvoří a otevřené prostory jsou prázdné a nevyužité a celé místo působí zmateně a lacině. Základním záměrem je vnést do Pražské tržnice život, naplnit ji energií a přilákat do ní návštěvníky. Oživit prostranství i budovy, které dlouhou dobu jen čekaly a chátraly.
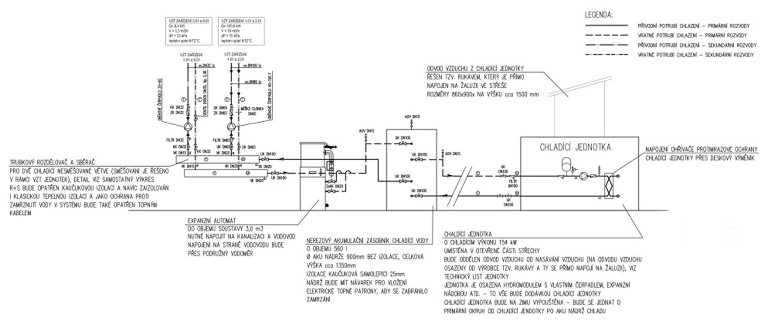
Vzhledem k potřebě dlouhodobé udržitelnosti provozu Pražské tržnice je nutné vnímat aspekt efektivního, a tím pádem ekologického hospodaření. V rámci návrhu je tedy počítáno se systémem dílčích opatření, které budou redukovat provozní náklady areálu za využití dostupných lokálních zdrojů. Ať už se jedná o využití Vltavy pro umístění tepelného čerpadla typu voda-voda jako zdroje pro ohřev i chlazení budov, akumulaci a zpětné využití dešťové vody. Srážkové vody ze střech objektů budou svedeny do podzemních akumulačních nádrží, odkud budou zpětně využívány pro údržbu či zalévaní zeleně v objektech i na veřejných prostranství, a to nejen v areálu Pražské tržnice.

Naše kancelář Růžička a partneři s.r.o. zajišťovala a zajišťuje od roku 2012 do současnosti přípravné a průzkumné práce v areálu, spolupracovala na dílčích částech některých projektů prováděných, nebo dokončených oprav budov. Současně jsme se podíleli na koncepčních zadáních projektových prací v areálu, spolupracovali na architektonických studiích na některé objekty a inženýrské stavby a zajišťovali jsme konzultační součinnost na většině projektů v rámci rozvoje celého areálu Holešovické tržnice tak, aby byl udržen koncepční a udržitelný přístup k areálu jako celku.

KLIENT


Magistrát Hlavního města Prahy

ARCHITEKTONICKÝ NÁVRH


HLAVNÍ PROJEKTANT


SPOLUPRÁCE


• Průzkumné práce pro základní posouzení stávajícího stavu inženýrských sítí „Holešovická tržnice“ (Basepoint s.r.o.) – 10/2013
• Technicko-provozní studie Holešovické tržnice a generel rozvoje areálu (Růžička a partneři s.r.o.) – 12/2013
• Provozně-technická studie energetických a technických parametrů objektu 22 (Růžička a partneři s.r.o., Ing. Karel Kodiš, Ing. Jaroslav Altera, Dekprojekt s.r.o.) – 07/2018
• Provozně-technická studie energetických a technických parametrů objektu 36 (Růžička a partneři s.r.o., Ing. Karel Kodiš, Ing. Jaroslav Altera, Dekprojekt s.r.o.) – 09/2018
• Průzkum a energetická studie na zásobování objektů Pražské tržnice v Holešovicích chladem a teplem (DigiTry Art Technologies s.r.o.) – 01/2019
• Studie návrhu zdroje tepla a chladu objektu č. 4 (Růžička a partneři s.r.o.) – 01/2019
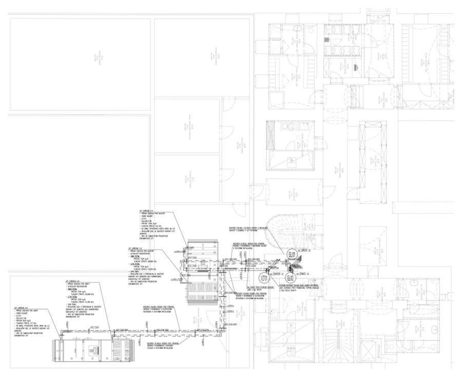
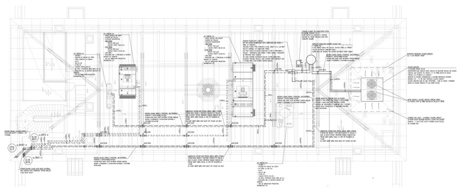
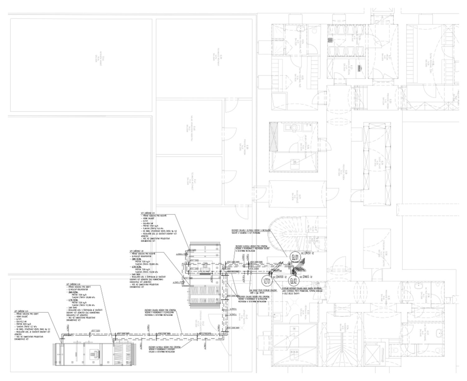
• Revitalizace objektu č. 4 – Burza – Zařízení pro ochlazování stavby (DigiTry Art Technologies s.r.o., Dekprojekt s.r.o., Růžička a partneři s.r.o.) – 03/2018 - DUR // 06/2019 – DSP // 12/2019 – DPS
• Podklady pro přípravu zadání sítí a povrchů, prověření možností změn v řešeném území (CMC architects a.s., CigDus s.r.o., Ing. Jiří Ledinský, Baurekon s.r.o., Radon v.o.s., Agrogeologie s.r.o., Inset s.r.o.) – 09/2020
• Zadání a potřebné studie pro návrh obnovy a rozvoje is pro výběrové řízení (CigDus s.r.o., CMC architects a.s., Lucida s.r.o.) – 05/2021
• Koncepční materiál pro řešení střešní krajiny areálu Pražská tržnice (CMC architects a.s., Růžička a partneři s.r.o.) – 03/2022
• Areálové přípojky IS pro objekt 27 a 28 v areálu Pražské tržnice – vodovodní, kanalizační, odlučovač tuků, plynovodní a NN přípojka (Růžička a partneři s.r.o., ZTIIS spol. s r.o., ANADA HS a.s.) – 04/2022 – DUR
• Oddělení zdroje tepla objektu č. 2 (Ing. T. Gandel, Tomrose engineering s.r.o.) – 06/2022 – DSP, DPS
• Stavební úpravy haly č. 24 (Růžička a partneři s.r.o., RA15 a.s., Piada s.r.o., Autin Elektro, Draconis s.r.o., Projekční kancelář vzduchotechnika – hluk, ZTIIS spol. s r.o., Ubiquisr v.s.) – 06/2022
• Stavební úpravy haly č. 24 – přesun plynové kotelny III. Kategorie (Růžička a partneři s.r.o., RA15 a.s., Piada s.r.o., Autin Elektro, Draconis s.r.o., Projekční kancelář vzduchotechnika – hluk, ZTIIS spol. s r.o., Ubiquisr v.s.) – 06/2022 – DSP, DPS
• Areálové přípojky IS pro objekt 27 a 28 v areálu Pražské tržnice – hospodaření s dešťovou vodou (Růžička a partneři s.r.o., ZTIIS spol. s r.o.) – 05/2023 – DUR /DSP/DPS