HOTEL HORIZONT

2013 STUDIE, PSP

ARCHITEKTONICKÝ NÁVRH: Akad. arch. Jiří Javůrek, SGL projekt s.r.o.

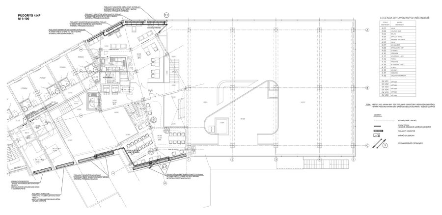
Projekt rekonstrukce hotelu Horizont řeší rekonstrukci vnějšího obvodového pláště hotelu, který již jeví známky fyzického i morálního opotřebení, celkovou změnu gastroprovozu na všech patrech, vizi zrealizovat nový panoramatický výtah, který propojí hotel mezi 2.-18.NP a dispoziční a interiérové změny v různých částech hotelu (vstupní hala, odbytové plochy gastra, 17. a 18.NP. atd.).
Koncept rekonstrukce sleduje myšlenku pragmatického uspořádání uvnitř i vně objektu. Vnitřní prostory se pročišťují a zjednodušují ve smyslu estetického i provozně-dispozičního řešení. Vnější plášť je řešen v minimalistickém duchu s užitím trvanlivých a nadčasových materiálů.

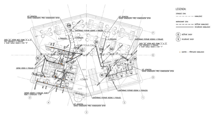
Naše kancelář Růžička a partneři s.r.o. zajišťovala projektovou dokumentaci profesí TZB (kanalizace, vodovod, plynovod, vytápění, vzduchotechnika a chlazení).

KLIENT


Regata Čechy a.s.

ARCHITEKTONICKÝ NÁVRH


Akad. arch. Jiří Javůrek, SGL projekt s.r.o.

STAVEBNÍ ČÁST


SGL projekt s.r.o.

SPOLUPRÁCE
VZT: Projekční kancelář vzduchotechnika – hluk, Ing. Karel Havlík