KARLÍNSKÉ NÁDRAŘÍ

2023 DÚR 2024 DSP

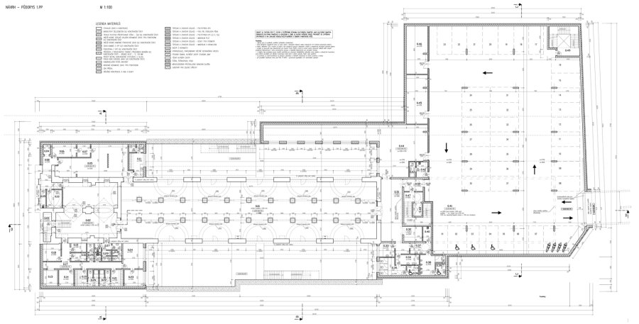
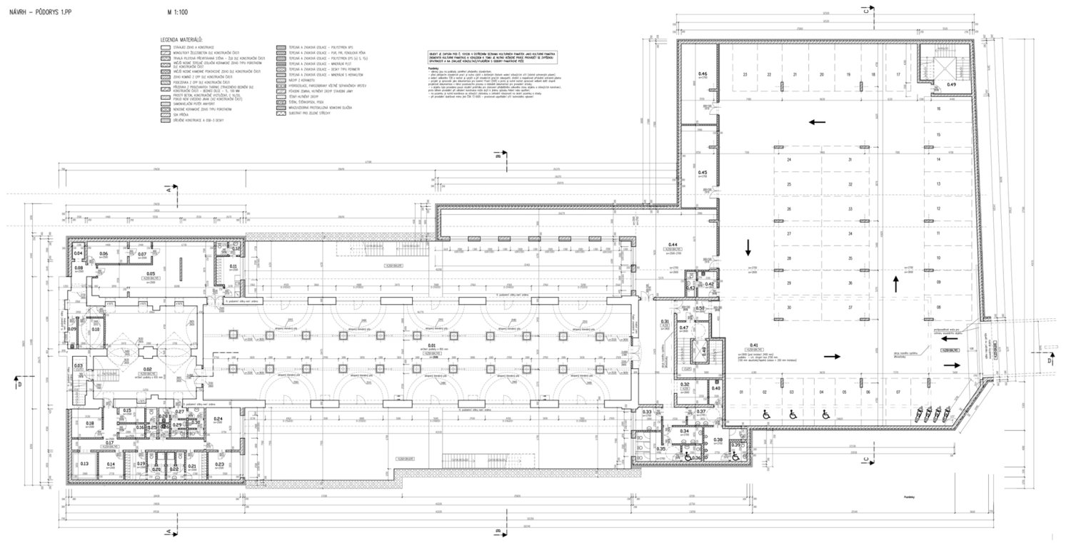
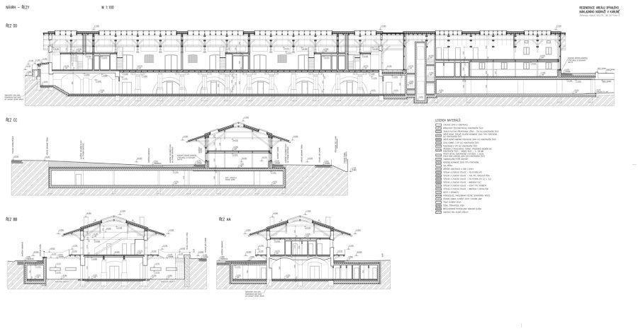
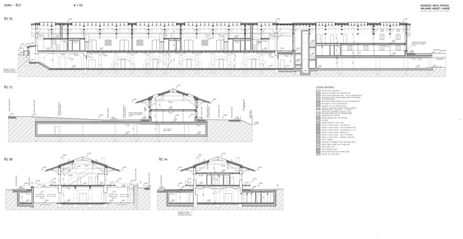
Námi připravovaná dokumentace řeší stavební úpravu areálu bývalého nákladního nádraží v Karlíně. Objekt skladů a kancelářského objetu bývalého nádraží se historicky skládal ze dvou stavebních objektů. Jedná se o dochovanou zděnou část objektu a již odstraněnou dřevěnou část. Objekt byl provozně a konstrukčně propojenou stavbou o celkovém obdélníkovém půdorysu cca 92 x 12 m a se značným přesahem střech nad nákladové rampy vystupující před půdorys objektu.
Stavební záměr zahrnuje stavební úpravu stávající zděné části stavby, a to včetně jejího podzemního rozšíření s otevřením úrovně 1.PP do rozsáhlých anglických dvorků. Dále je navrženo navrácení dnes již odstraněné dřevěné části objektu ve vzhledově obdobném řešení, ale s jiným konstrukčním provedením. Pod touto částí je navržen rozsáhlejší podzemní prostor, který bude sloužit převážně jako podzemní garáž.
Objekt je nemovitou kulturní památkou a náleží k cenným historickým stavbám svého druhu. Jeho mimořádná hodnota pak spočívá ve skutečnosti, že je spolu se sousedním domem bývalého celního úřadu jediným dosud stojícím pozůstatkem významného nádraží Rakouské severozápadní dráhy z devatenáctého století.
Návrh předpokládá vytvoření polyfunkčního (multifunkčního) objektu. Jako hlavní využití objektu jsou navrženy obchodní jednotky, restaurace a bytová jednotka. Tyto funkce jsou doplněny o podzemní hromadnou garáž a příslušné zázemí.
Zdrojem pro vytápění a chlazení je tepelné čerpadlo, které jako zdroj energie využívá zemní vrty. Hygienický výměna vzduchu je převážně navržena VZT jednotkou s rekuperací. Gastroprovoz restaurace bude využívat napojení objektu na plyn.
Celkový návrh je proveden citlivě pro zachování památkové hodnoty stavby, ale zároveň je v objektu navržena dispozice dle současných potřeb a použita moderní technologie v rámci technického zařízení budov.

Naše kancelář Růžička a partneři s.r.o. zajišťovala kompletní projektovou dokumentaci jako generální projektant, zpracovávala veškeré koordinační části projektové dokumentace (souhrnné zprávy, situace), projektovala architektonicko-stavební řešení, nové inženýrské sítě a přeložky vč. nové trafostanice, zdroj tepla chladu, ZTI, vytápění, ELO a úzce spolupracovala s externími projektanty.

KLIENT


Convala a.s.

SPOLUPRÁCE


požární řešení: Ing. Jiří Ledinský
vzduchotechnika: DEKPROJEKT S.R.O.
elektroinstalace: ELEKTROPRO, Aleš Svoboda