PAVILÓN GRÉBOVKA

2005 DSP 2007 DPS 2009 REALIZACE STAVBY

ARCHITEKTONICKÝ NÁVRH: Akad. arch. Jiří Javůrek, SGL projekt s.r.o.

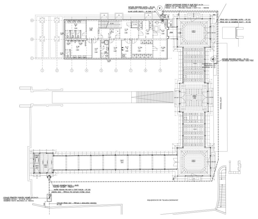
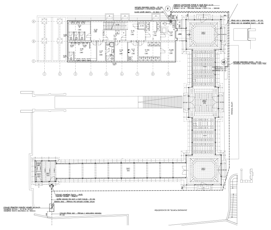
Pavilon byl postaven roku 1888, architekti J. Schulz a A. Barvitius, je součásti parkového areálu zbudovaného Moritzem Gröbem. Před 1. světovou válkou byl odkoupen vinohradskou obcí a provozován jako zahradní restaurant. Po 1. sv. válce adaptován na jesle, které byly provozovány do 2. pol. 20. století. Četné stavební úpravy, především vnitřní zateplení v kombinaci s celoročním užíváním, vedly k provlhávání a degradaci hrázděného zdiva. Navážky terénu zneprůchodnily ventilaci pod podlahou a vlhkost vzlínala z terénu přímo do trámů. Dlouhodobě neudržovaný pavilon byl rovněž hustě porostlý vegetací, což zabraňovalo proudění vzduchu kolem budovy.
Projekt obnovy byl započat v roce 2005, nejprve nerealizovanou variantou s celoročním provozem počítajícím se zateplením historického křídla a rozsáhlými transfery nástěnných maleb.
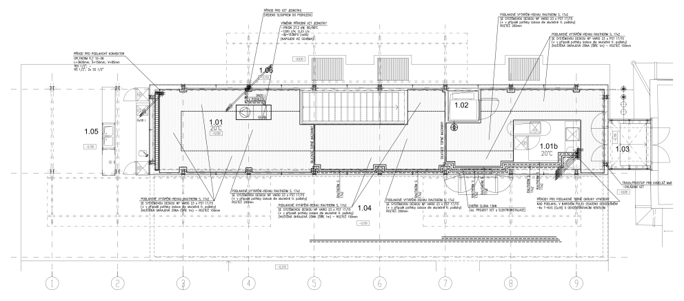
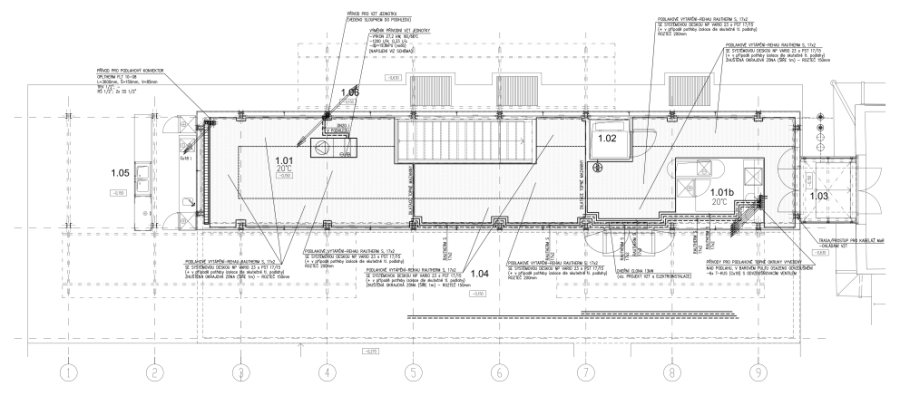
Hlavní důraz byl kladen na maximální uchování všech autentických částí budovy a užívání tradičních řemeslných postupů.

Naše kancelář Růžička a partneři s.r.o. zajišťovala ve stupních DSP a DPS kompletní projektovou dokumentaci profesí inženýrských sítí a TZB v objektu včetně koordinace projektu profesí TZB v průběhu realizace.

KLIENT


Městská část Praha 2

ARCHITEKTONICKÝ NÁVRH


Akad. arch. Jiří Javůrek, SGL projekt s.r.o.

SPOLUPRÁCE


VZT: Projekční kancelář vzduchotechnika–hluk, Ing. Karel Havlík
CSC - požární bezpečnost: Ing. arch. Petr Syrový
stavební část: STARÝ A PARTNER, s.r.o.