REMAX COLLECTION

2012 STUDIE

Remax Colection je prémiová značka největší mezinárodní sítě, která reaguje na potřeby těch nejnáročnějších klientů. Makléři se specializují na prodej a pronájem exkluzivních nemovitostí. Návrh kanceláře měl splnit nejpřísnější kritéria na kvalitu provedených prací, desingové zpracování interiéru a zdůraznit prezentaci nejen značky Remax Colection, ale i nabízených realit.
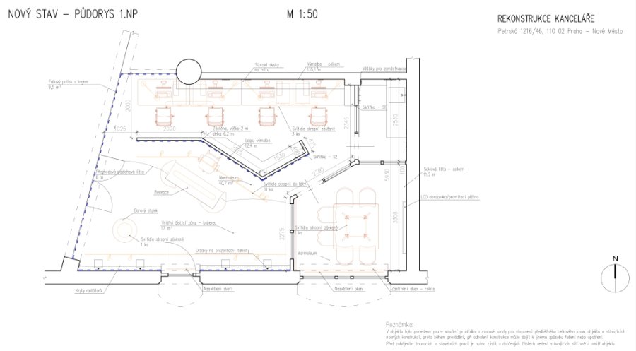
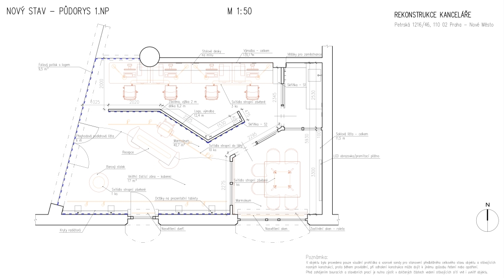
Prostor kanceláře se nacházel v kancelářském komplexu Praha City Center. Projekt navrhl oddělení prostoru pro prezentaci realit a kanceláře makléřů, zachoval a upravil jednací místnost a kuchyňku. Provedla se výměna křivého podhledu za nový, položily se nové podlahy, stávající příčka byla rozebrána, upravena a doplněna o horní světlíky, postavila se nová polopříčka, rozvedly se nové rozvody elektroinstalací, prostor se osvětlil odpovídajícím osvětlením a samozřejmostí byla nová výmalba. Celý prostor se desingově sjednotil.
Hlavní prezentační prostor byl projektován tak, aby z obou vstupních míst (z pasáže i z ulice), jako první zaujala recepce s logem Remax Colection za zády. Recepce byla vytvořena na míru, z pravého proutí a svým tvarem asociuje na balón v logu Remax Colection. Pomyslná zóna pro zákazníky a pro pracovníky je oddělena v podlaze rozdílem materiálů. Na míru byly také vytvořeny nerezové držáky tabletů, na kterých jsou puštěny prezentace nabízených realit. Kancelář makléřů za polopříčkou odpovídala vizi kanceláře - "Makléři shání a nabízí reality venku" - v kanceláři je proto pro ně připraven podpůrný prostor se sezením, s připojením na sítě. Místnost nabízela pohodlí a soukromí při jednání, může být odstíněna vertikálními žaluziemi od kanceláře i od průhledu z ulice. V místnosti byla osazena televizní obrazovka, na kterou jsou promítány vybrané reality.

Kancelář Růžička a partneři s.r.o. zajišťovala projektovou dokumentaci, koordinaci projektu a kompletní realizaci projektu, včetně výběru a dodání zařizovacích předmětů a nábytku.

KLIENT


PLATINUM REAL ESTATE CZECH REPUBLIC s.r.o.