RODINNÝ DŮM EGGO

2005 DSP 2006–2008 REALIZACE

Architektonický návrh: A69–architekti s.r.o., Jaroslav Wertig, Prokop Tomášek, Boris Redčenkov

EGGO je rozsáhlou přístavbu původního rodinného domu v historické čtvrti Žižkov-Jarov.
Přístavba je navržena pro bydlení majitele objektu a jednatele projektové kanceláře umístěné v původním rodinném domě na pozemku. Jednalo se ve své době o zcela individuální návrh a postup realizace přístavby na téměř celé ploše pozemku, jehož koncept navrhl ve studii architekt Stanislav Fiala. Nejen z důvodu nepříznivé souhry jeho pracovní vytíženosti, ale také časových a jiných okolností i rodinných důvodů majitele domu, nebyla původní studie v navrženém tvaru přístavby realizována. Na základě doporučení samotného autoru původního návrhu jsme přímo oslovili, tehdy již známé studio A69 – architekti s.r.o. Návrh, který měl vycházet z původního konceptu arch. Fialy nápaditě přepracovali v rekordní době 4 týdnů, do podoby dnešní již realizované přístavby i s jimi navrženým názvem EGGO.
Cílem návrhu bylo vytvořit na zahradě právě zrekonstruovaného rodinného domu samostatnou bytovou jednotku pro nastávající 4člennou rodinu. Bylo nutné vypořádat se s dominancí protější panelákové fasády, vypořádat se s architekturou původního domu a najít řešení neparazitující na ploše zahrady s maximálním plošným využitím.
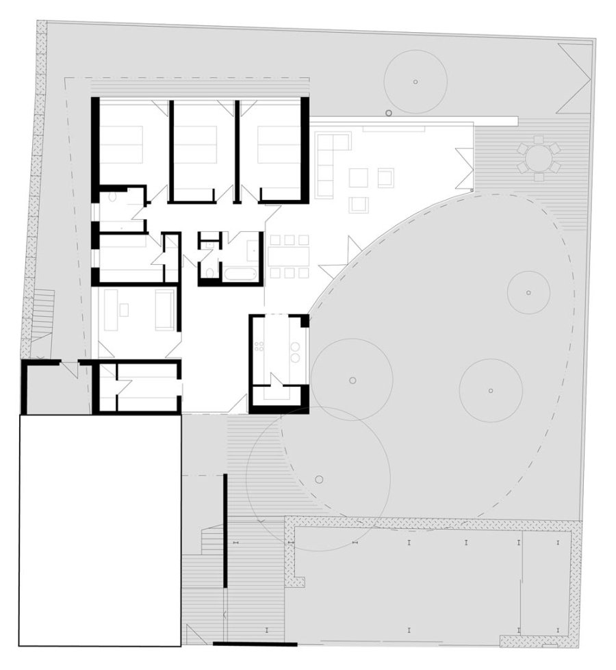
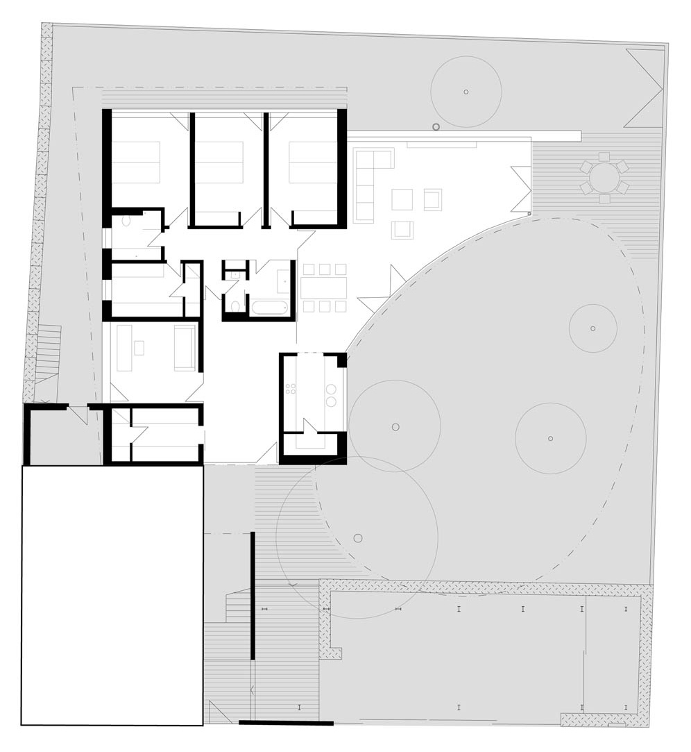
Východiskem pro návrh se staly existující fragmenty rekonstrukce původního domu: předsazená betonová deska s vymístěným exteriérovým ocelovým schodištěm, zeď u vstupní branky a parkovací stání vymezená gabionovými stěnami. Stávající zdi z betonových tvárnic ve směru rovin X a Y doplnil návrh horizontální deskou v rovině Z. Tato deska se stala hlavním prostorově organizačním prvkem a nositelem stěžejního motivu; otvoru ve tvaru ovoidu. Deska je horizontálním rozhraním, ke kterému se vztahují všechny výškové relace. Svou subtilitou vymezuje novostavbu vůči kompaktní omítkové architektuře stávajícího domu. Zastřešuje a sjednocuje řadu funkcí; garáže po auta, sklad, přístupovou terasu se závětřím, hlavní obytný prostor, pobytovou terasu, oplocení. Ovoid v této desce definuje ohnisko, kolem kterého se nový dům odvíjí. Definuje ego domu, jehož podstatou není architektonický, ale přírodní prostor původní zahrady se zachovanými vzrostlými stromy. Do tohoto ohniska se koncentruje veškerá energie, aby vytvořila psychologickou bariéru proti nadvládě protější panelákové fasády. Prostor a světlo unikají z mikrosvěta zahrady distancemi a průhledy mezi volně komponovanými deskami.
Samotný dům má naopak pevné vymezení funkčními bloky. Z velké vstupní haly se vstupuje do autonomní pracovny, a do privátní zóny. Privátní zóna je striktně dělená na intimní a společenskou část. Intimní je orientovaná na východní fasádu s vlastní terasou, společenská do atria zahrady. Kuchyňská kajuta ve formě bloku navazuje přímo na společenský prostor. Jídelní a obývací hala má charakter proskleného pavilonu-zimní zahrady. Její křehký prostor je vyztužený paravánem horizontální stěny se symbolem domova-krbem. Přímo navazuje na krytou pobytovou terasu.
Jako kompenzace zastavěné plochy domu byla vytvořena střešní zahrada výškově navazující na patro původního zrekonstruovaného domu.

Naše kancelář Růžička a partneři s.r.o. zajišťovala kompletní projektovou dokumentaci jako generální projektant, zajišťovala kompletní inženýrskou činnost, zpracovávala veškeré koordinační části projektové dokumentace (souhrnné zprávy, situace), projektovala architektonicko-stavební řešení, ZTI, vytápění a logicky úzce spolupracovala na realizaci stavby.

KLIENT


soukromá osoba

ARCHITEKTONICKÝ NÁVRH


A69–architekti s.r.o., Jaroslav Wertig, Prokop Tomášek, Boris Redčenkov

SPOLUPRÁCE


stavební řešení: Ing. Vojtěch Hrček
stavebně konstrukční řešení: Němec Polák s.r.o
požární řešení: Ing. Jiří Syrový
vzduchotechnika: Ing. Karel Havlík, Ing. Miroslav Rathouský
elektroinstalace: Bohumír Flegel