TANČÍRNA DĚLNICKÁ

2012 PSP, RS

ARCHITEKTONICKÝ NÁVRH: Akad. arch. Jiří Javůrek, SGL projekt s.r.o.

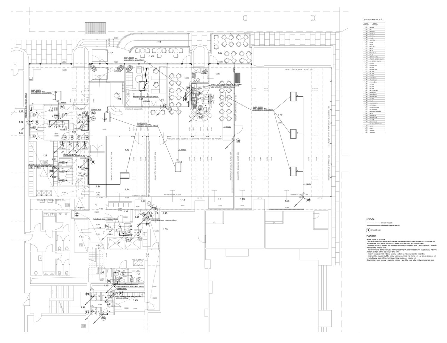
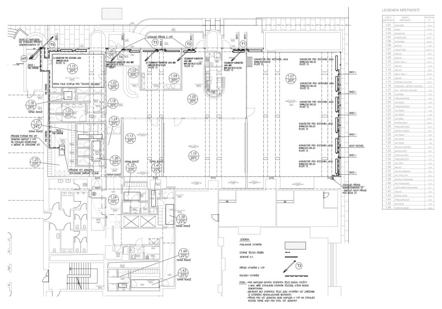
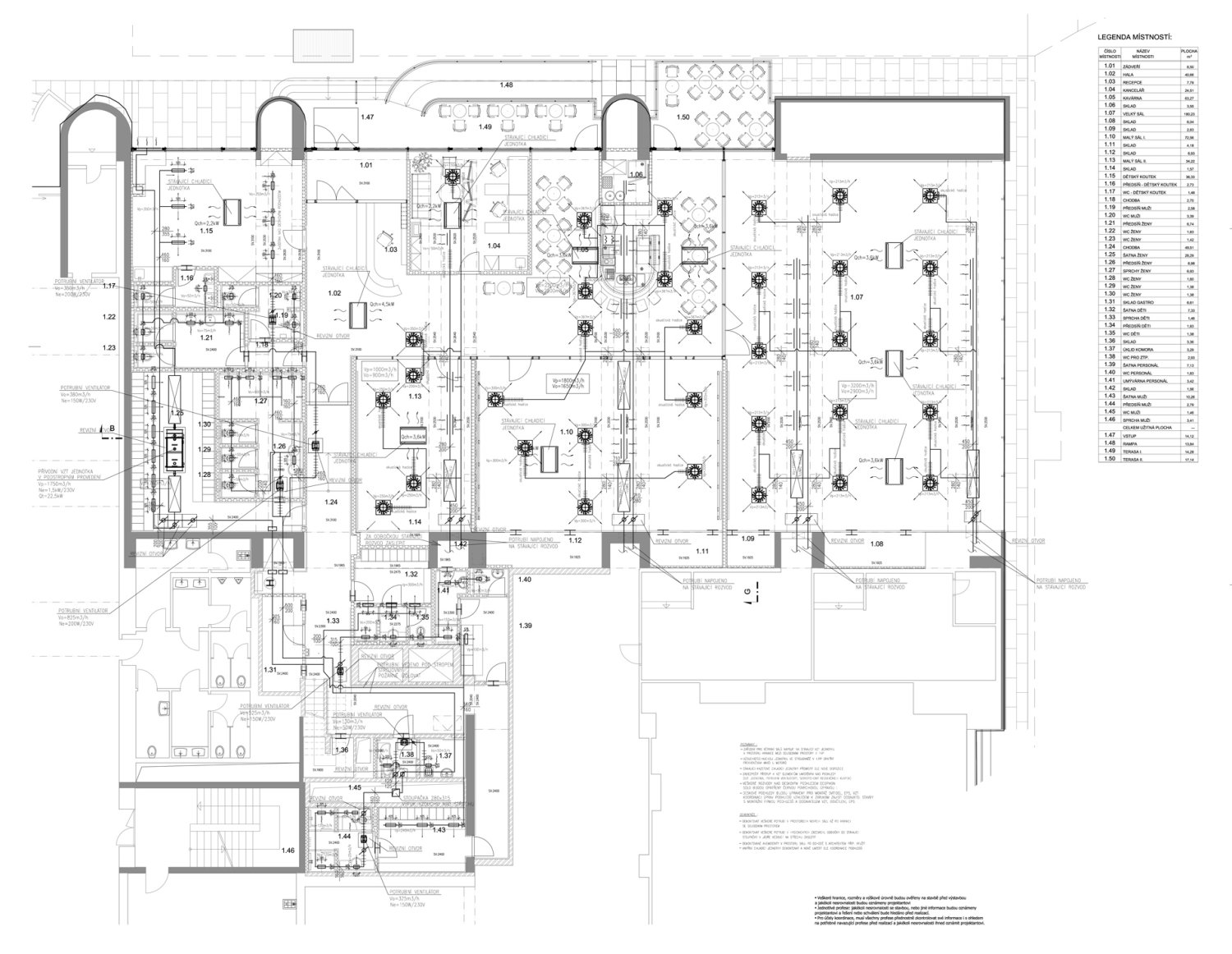
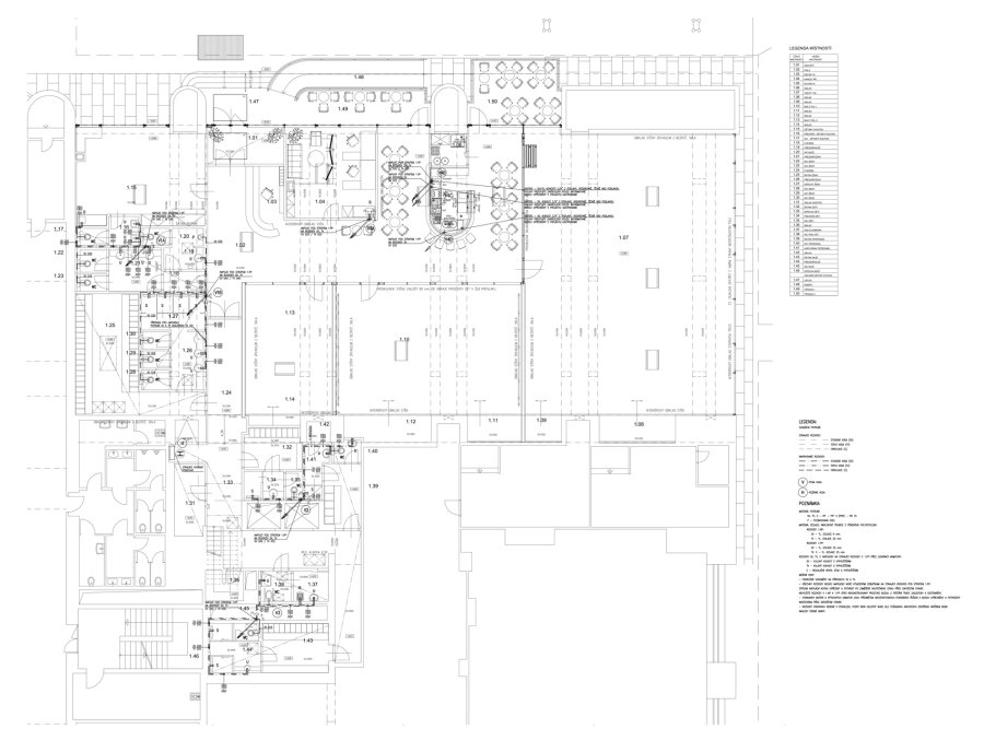
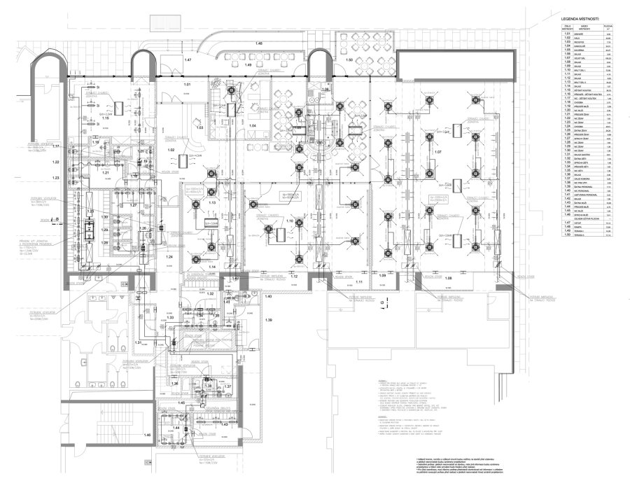
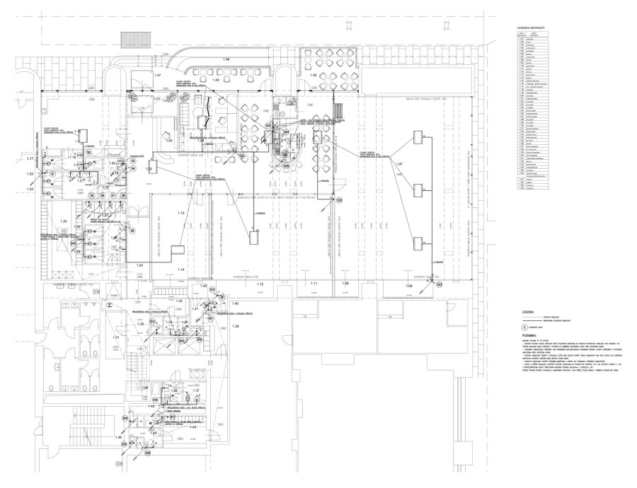
Tančírna Petra Čadka je exklusivní taneční studio s krásným moderním zázemím a profesionálními lektory na té nejvyšší úrovni. Taneční studio nabízí zázemí, které zdaleka převyšuje ostatní taneční studia v ČR, možnost výběru ze široké škály stylů tance a profesionální lektory s mnohaletou praxí ve svých oborech. K dispozici jsou tři taneční zrcadlové sály se špičkovým ozvučením a dalšími technickými vymoženostmi, kongresový sál s projekcí cca pro 300 lidí, bar a kavárna s širokým výběrem nápojů a lehkých jídel a dětský koutek.

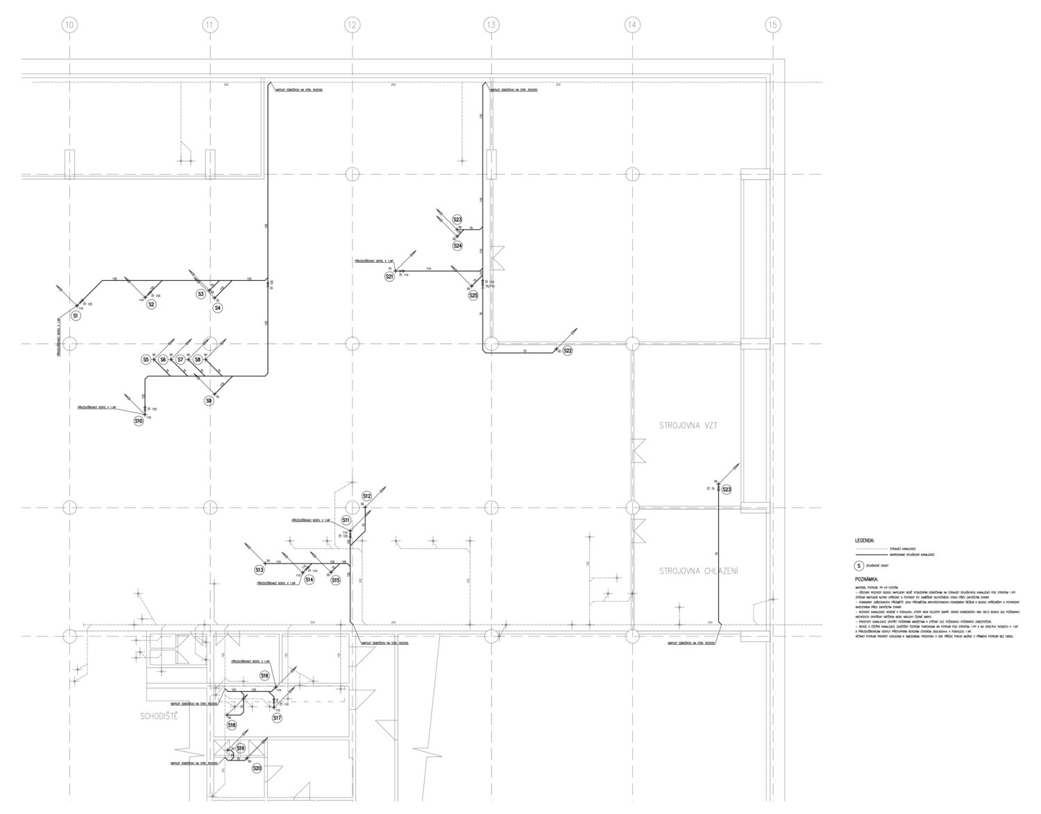
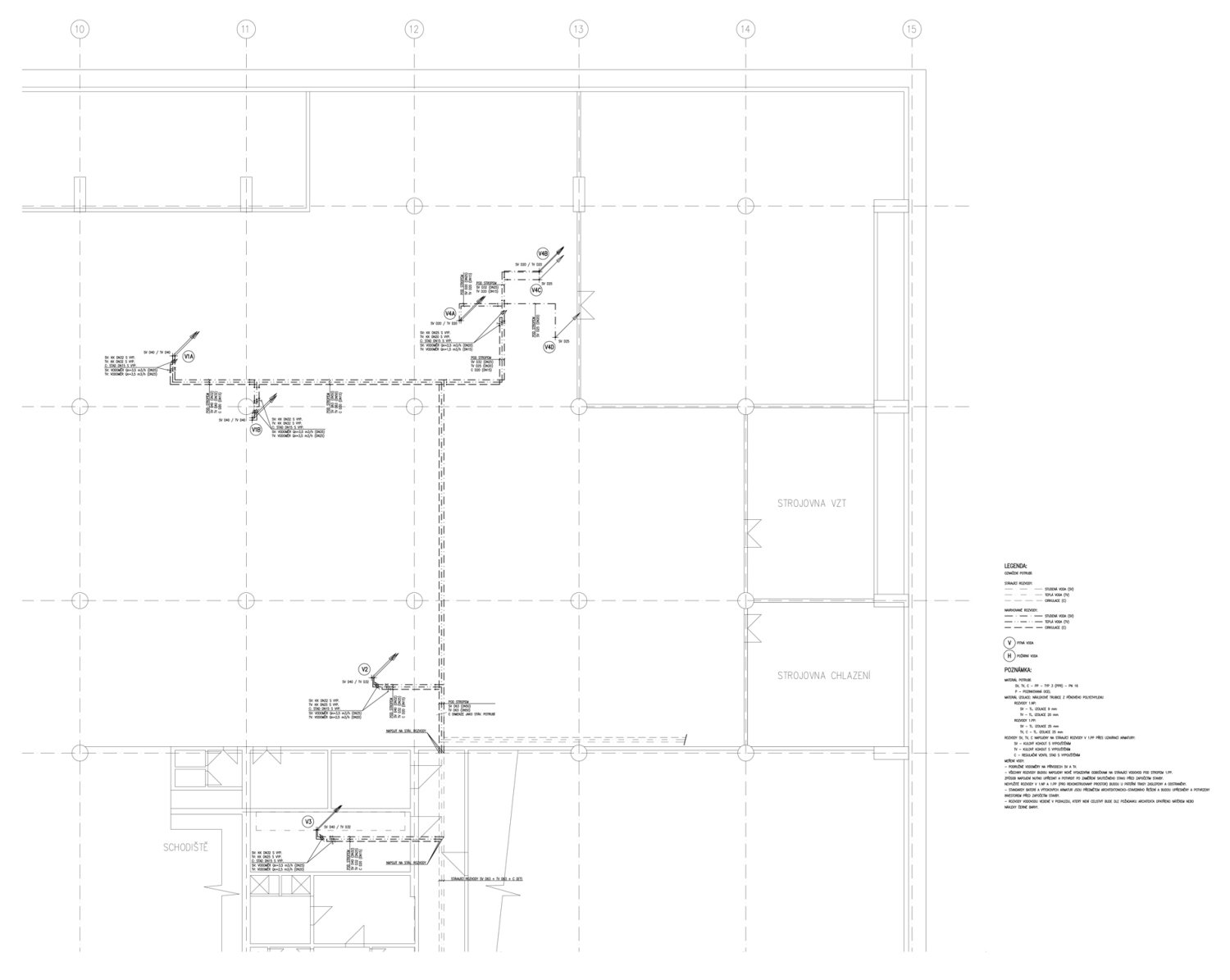
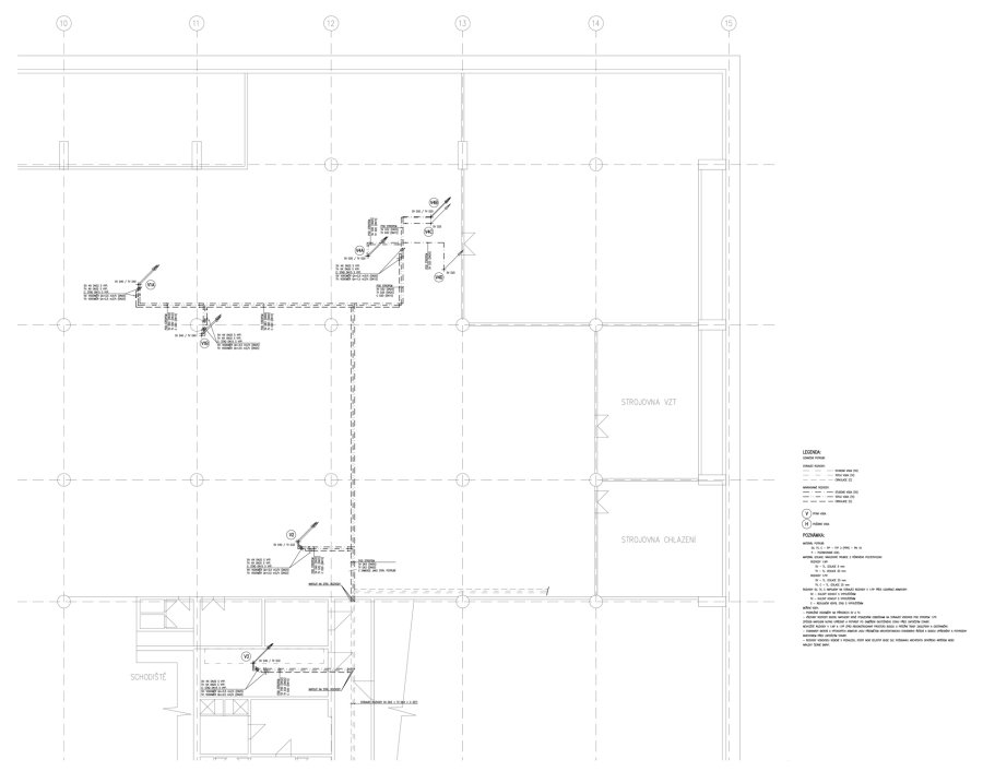
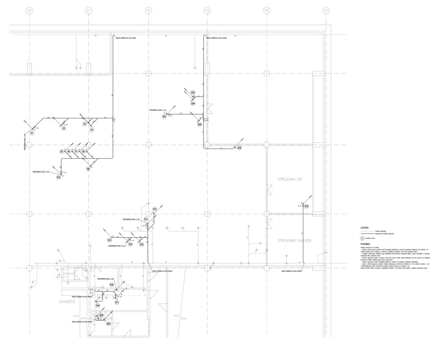
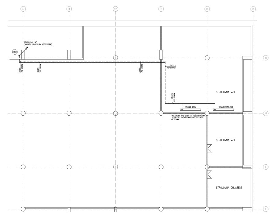
Naše kancelář Růžička a partneři s.r.o. zajišťovala profese TZB (zdravotně technické instalace, vytápění, vzduchotechniku a chlazení).

KLIENT


Tančírna s.r.o., Schnirchova 1256/2, 17000 Praha 7 - Holešovice

ARCHITEKTONICKÝ NÁVRH


Akad. arch. Jiří Javůrek, SGL projekt s.r.o.

STAVEBNÍ ČÁST


SGL projekt s.r.o.

SPOLUPRÁCE


VZT: Projekční kancelář vzduchotechnika – hluk, Ing. Karel Havlík, ing. Miroslav Rathouský