VÝBUCH V DIVADELNÍ ULICI

2013 STATICKÉ ZAJIŠTĚNÍ HAVÁRIE

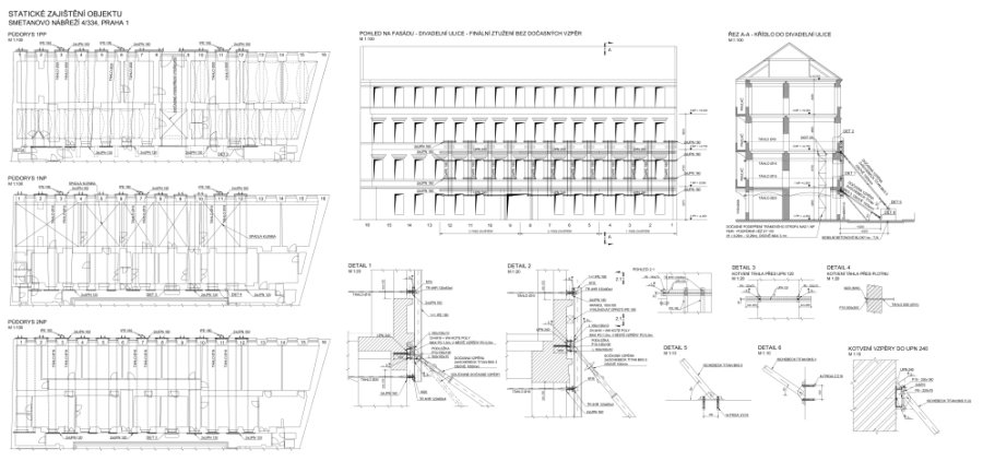
Jedná se o objekt, který leží mezi ulicí Divadelní a Smetanovým nábřežím, který byl poškozen výbuchem zemního plynu v prostoru traktu Divadelní.
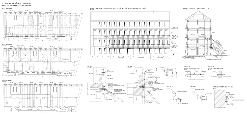
Dům vytváří uzavřenou „palácovou“ dispozici s vnitřním dvorem. Z hlediska konstrukčního se jedná o dva konstrukčně nezávislé objekty – křídlo přiléhající ke Smetanovu nábřeží a křídlo v Divadelní ulici, které jsou propojeny bočními jednotraktovými krčky. Křídlo do Smetanova nábřeží je podélný dvojtrakt s vykonzolovanými pavlačemi a schodištěm na obvodové fasádě. Do objektu se vstupuje příčně vloženou chodbou ze Smetanova nábřeží v úrovni 1.NP. Do dvora je možné vstoupit z hlavního schodiště, kterým se sestupuje do 1.PP. Křídlo do ulice Divadelní je podélný dvojtakt s vykonzolovanými pavlačemi. Pavlače zárověň propojují křídlo do ulice Divadelní s křídlem do Smetanova nábřeží. Do vnitrobloku je přístup přes průjezd z Divadelní ulice. Z této strany není objekt podsklepen a celé 1. PP z Divadelní ulice je v úrovni terénu.
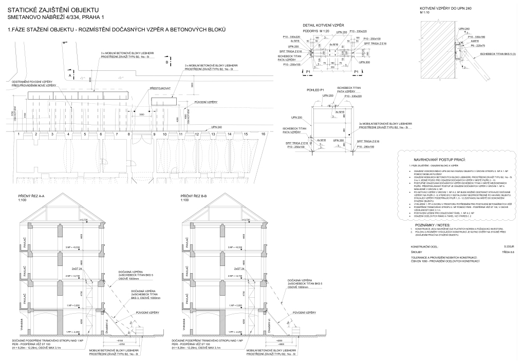
V rámci projektové dokumentace bylo navrženo statické zajištění výbuchem poškozených konstrukcí a provedení průzkumů souvisejících se statickým zajištěním objektu, umožňujícím jeho další rekonstrukci.

Naše kancelář Růžička a partneři s.r.o. zajišťovala postup zajišťovacích prací a kompletní projektovou dokumentaci vnějších inženýrských sítí a profesí TZB v objektech včetně koordinace projektu.

KLIENT


Řízení letového provozu ČR, s.p.

SPOLUPRÁCE


DIO: JiP Dopravní značení s.r.o., Petr Havlíček
soudní znalec - rozvod plynu v budově: Ing. Jaromír Špičák
VZT: Ing. Tomáš Jadrníček
PBŘ: Ing. Hana Menclová