ZÁKLADNÍ ŠKOLA KVĚTNOVÉHO POVSTÁNÍ

ARCHITEKTONICKÝ NÁVRH: Ing. arch. J. Slavíček

Novostavba školní kuchyně (přístavba k základní škole) byla navržena jako jednopodlažní objekt.

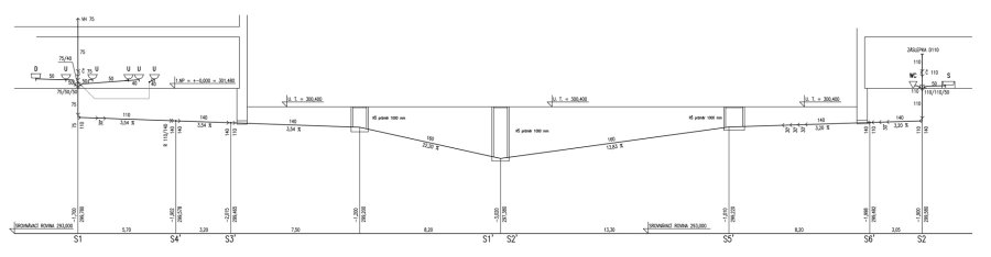
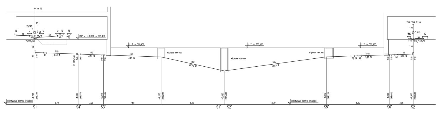
Naše kancelář Růžička a partneři s.r.o. projektovala pro novou kuchyňskou gastro-technologii vnitřní kanalizaci, vodovod a plynovod a zajištovala přípravu stavby a technickou koordinaci. Na svod splaškových vod z bytu školníka a ze sociálního zázemí kuchyně je přes odlučovač tuků a škrobů připojena tuková splašková kanalizace z kuchyně. Splaškové vody jsou odvedeny dvěma hlavními větvemi po pozemku investora do stávající revizní šachty, kde navazuje stávající přípojka veřejné kanalizační sítě. Dešťové vody objektu jsou svedeny do tří hlavních ležatých svodů na pozemku investora, které pokračují do stávající revizní šachty, kde navazuje stávající přípojka veřejné kanalizační sítě.

KLIENT


MÚ MČ Praha 11

ARCHITEKTONICKÝ NÁVRH


Ing. arch. J. Slavíček