ZÁMEK VESELÍ NAD MORAVOU

2009 DÚR 2011 PSP

ARCHITEKTONICKÝ NÁVRH: MgA. Jiří Soukup, Studio Anarchitekt, s.r.o.

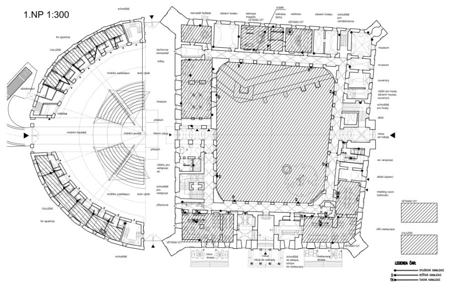
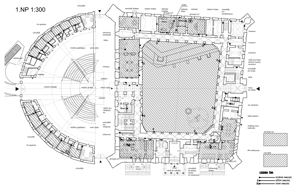
Objekt zámku Veselí nad Moravou bude po rekonstrukci sloužit komerčnímu využití. Polyfunkční objekt bude obsahovat pětihvězdičkový konferenční hotel o celkové kapacitě 93 lůžek, kancelářské a provozní prostory hotelu, prezentační a konferenční prostory, prohlídkovou trasu a prezentaci archeologických nálezů, podsklepení obou nádvoří s technickým zázemím a sklady, zastřešení nádvoří – atrium. Rekonstrukce zámku a několika dalších stavebních objektů v areálu bude probíhat v několika etapách:
Etapa I.: Obnova a nové využití zámku Veselí nad Moravou“ - přestavba zámku na hotel, částečné podsklepení zámku s prezentací nálezů archeologického průzkumu, vybudování přípojek sítí a realizace sjezdové rampy do suterénu.
Etapa II.: Dostavba původní Oranžerie, přístavba klubové části a restaurace.
Etapa III.: Úprava ploch zahradnictví spolu s vybudováním tréninkových golfových ploch.
Etapa IV.: Novostavba indoorového sportovního centra s penzionem, další doplňkové aktivity.

Naše kancelář Růžička a partneři s.r.o. zajišťovala průzkumy, koordinaci projektu, projektovou dokumentaci všech vnějších inženýrských sítí a profesí TZB a příprava koordinační situace stavby.

KLIENT


Wessels, s.r.o.

ARCHITEKTONICKÝ NÁVRH


MgA. Jiří Soukup, Studio Anarchitekt, s.r.o.

STAVEBNÍ ČÁST


Aspect Design, s.r.o.

SPOLUPRÁCE


VZT: Projekční kancelář vzduchotechnika – hluk, Ing. Karel Havlík
slaboproud: PROIS, Irena Sládková
požární ochrana: Ing. arch. Petr Syrový, CSc
statika: Němec Polák, spol. s r.o.